2.jpg

ARCHIFUG

Project date: 2023

Type: Academic | Thesis

Tutor: Egor Orlov

Author: Henry Bartels

Institute: Peoples' Friendship University of Russia

Course: 3

Theme: blocked house

Diploma:

  • Second place. 2024 Sino-russian students competition on urban and architectural design

Archifag will revive modern suburbs!

Archifag is a complex architectural and urban planning solution based on a system of blockable residential standardized cells and designed to form a high-quality residential environment in potentially difficult suburban areas: former industrial zones; areas between busy transport arteries; territories bordering quarries.

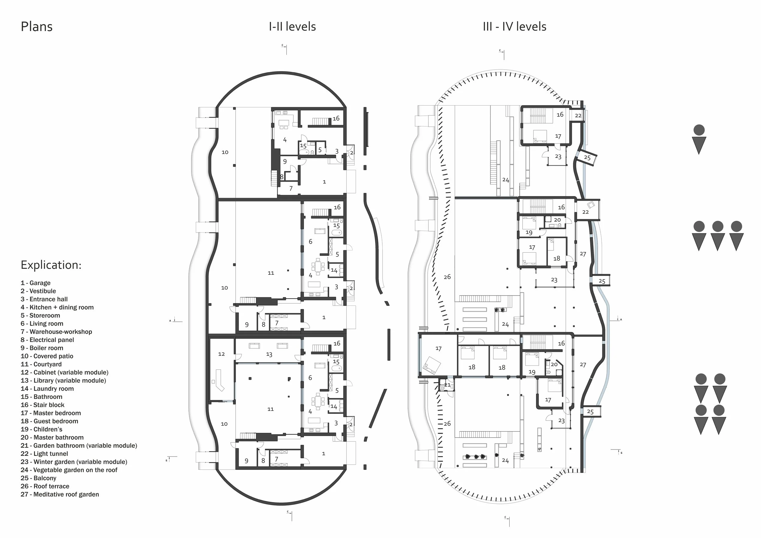
Safety and absolute comfort for residents are the fundamental qualities of the archphage. To ensure them, a system of membrane walls has been developed that prevent the penetration of external noise, dust and scorching sunlight into the residential complex, and also suggest the possibility of integrating microinfrastructure. At the same time, the wall of the courtyard facade is an active metal membrane capable of changing the degree of permeability, which allows you to control the insolation of residential volumes.

Structurally, the archifag consists of a capital stylobate, which can be quickly printed on a construction 3D printer, and collapsible modules installed on it, the desired size and configuration of which the residents of the complex can choose independently. In addition to the collapsible modules, a multifunctional frame system has been developed, into which additional household modules can be built - greenhouses, winter gardens, warehouses, pigeon coops and various external attachments.

Each residential cell has a spacious courtyard, and an individual vegetable garden is supposed to be placed on the roof of the first floor.

Archifag was conceived with the aim of forming a new healthy ecosystem of suburbs, in which comfortable and modern blockaded houses are part of a more global, publicly accessible bio-active landscape combining infrastructure facilities, public spaces, eco-friendly engineering solutions and various natural areas.

Archifag-a new affordable standard of living!