2.jpg

Grotto

Project date: 2023

Type: Academic | Thesis

Tutor: Egor Orlov

Author: Svyatoslav Grebnev

Institute: Peoples' Friendship University of Russia

Course: 2

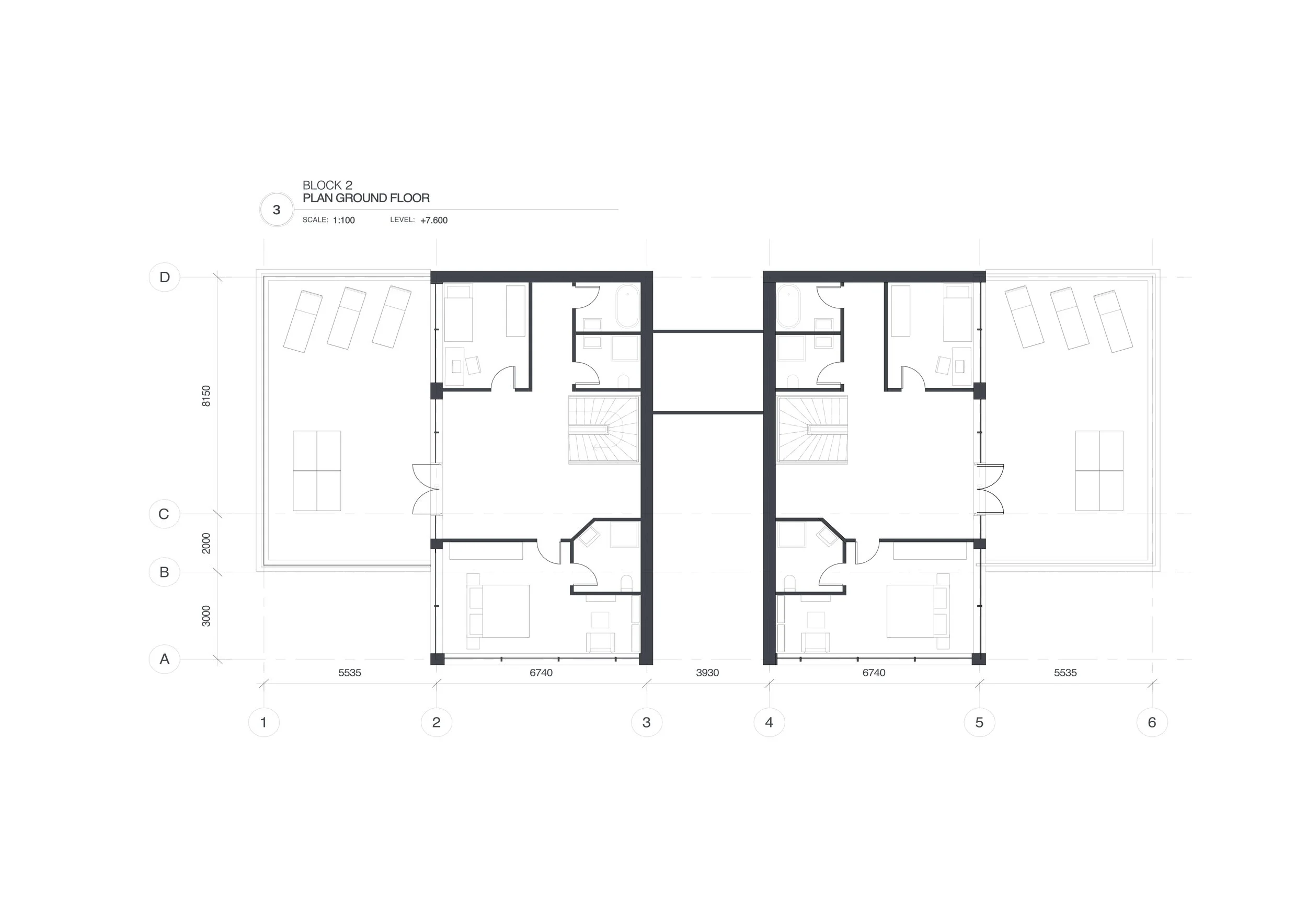
Theme: blocked house

The Urban Mainsail is a one-of-a-kind building structure that constitutes a social oasis in the heart of Irkutsk. It exemplifies the growing significance of public spaces in bustling city centers, balancing the need for privacy with the importance of inclusive and ample spaces for all.