1.jpg

House of November Fogs

Project date: 2024

Type: Academic | Thesis

Tutor: Egor Orlov

Author: Matvey Ilyin

Institute: Peoples' Friendship University of Russia

Course: 3

Theme: individual house

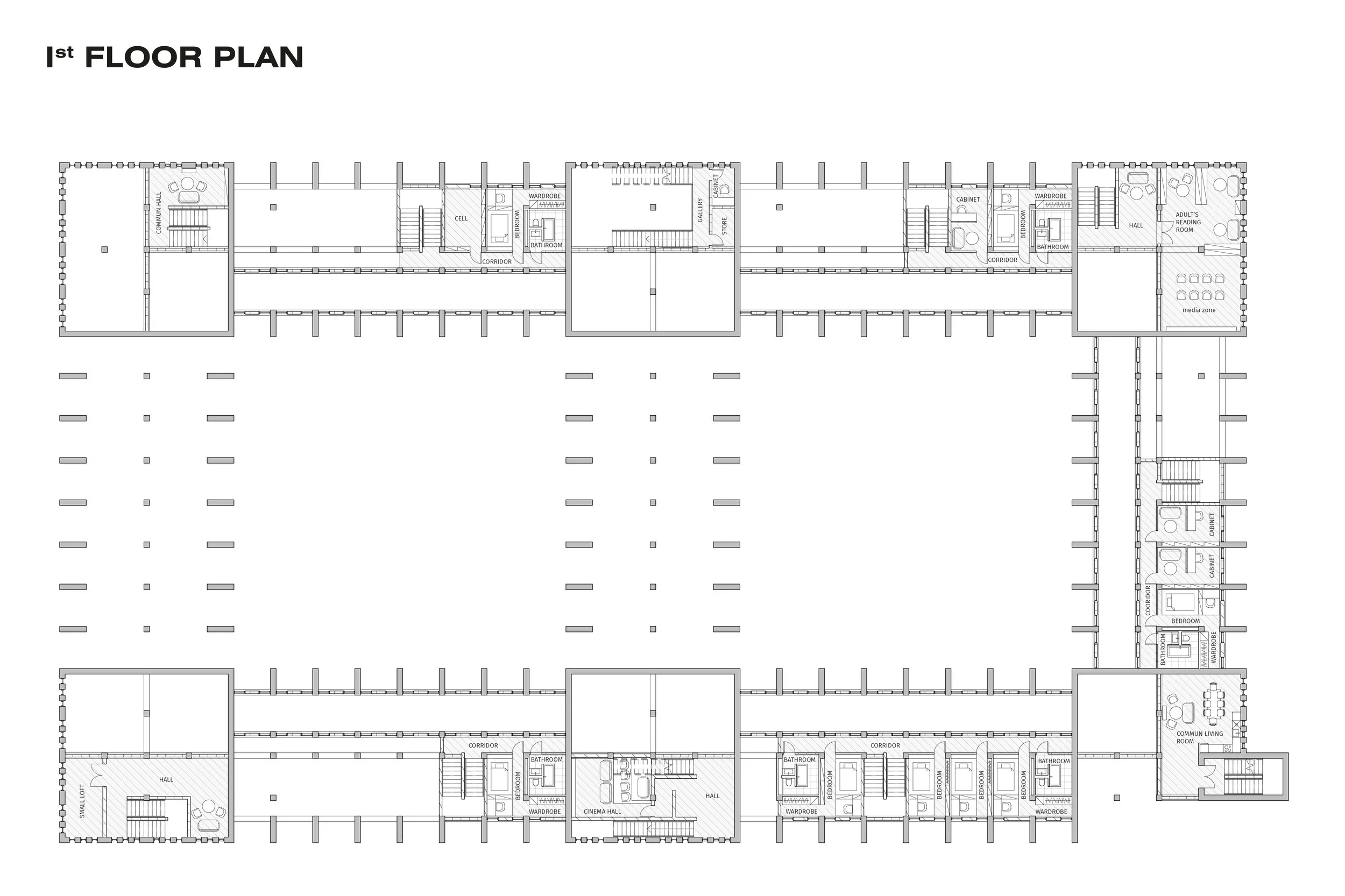
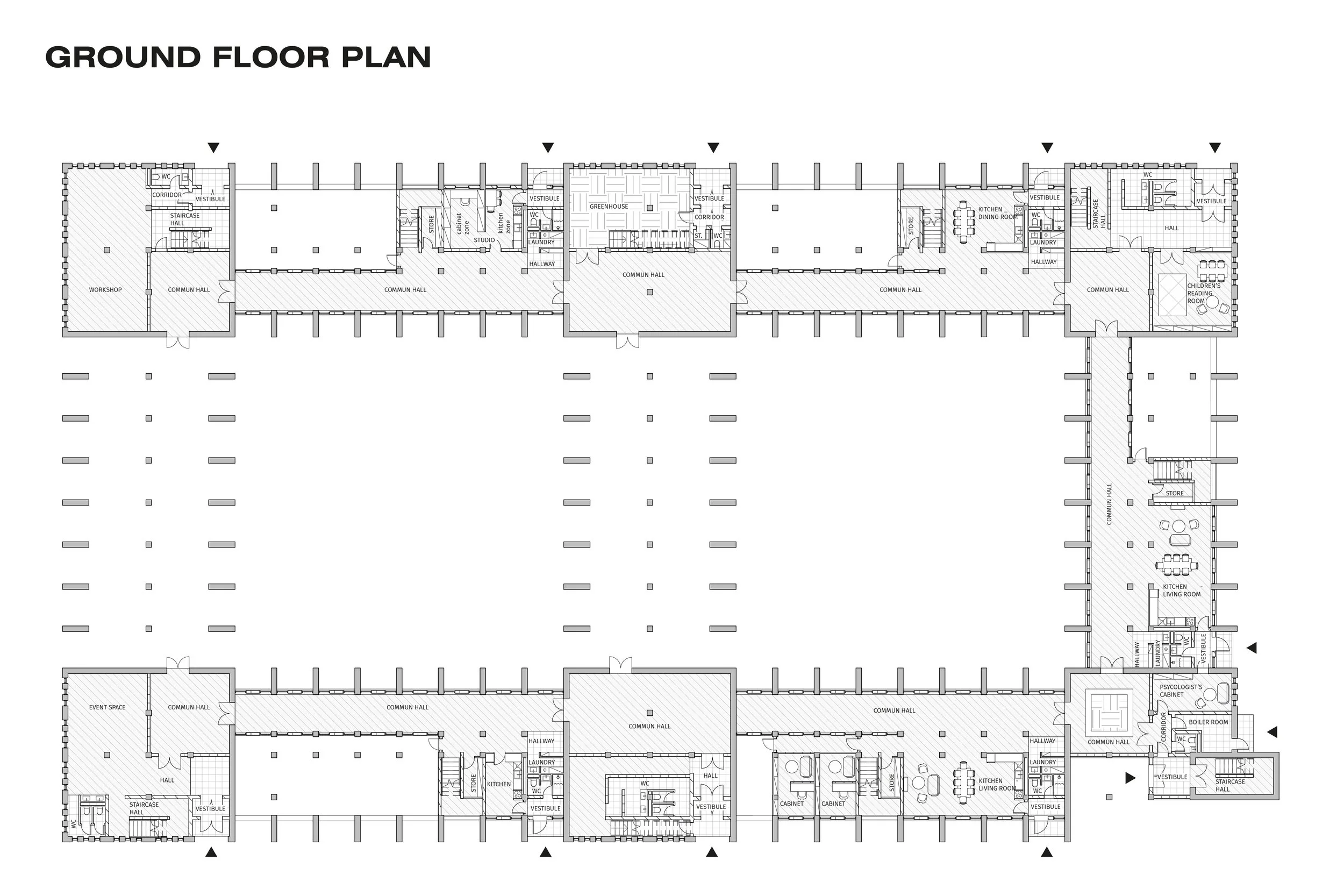
The project House of November Fogs (in german Novembernebelshaus) is an architectural solution to the problems of a transforming family in the modern world. Overcoming the flaw of personal space, generational conflicts and limited life expectancy is expressed in the creation of a single space for several generations of the extended family. It consists of transformable residential blocks connected by common areas (cinema, library, workshop, etc.). Thanks to the great potential for growth, the house can be expanded without changing the load-bearing frame, accommodating up to 50 residents. Scandinavian philosophy plays a big role in the project, especially the concepts of Hugge, Janteloven and Lagom. They define the basic principles of the house: changeability, modularity, private & public spaces balance, the opposition of external and internal spaces. Being located on the territory of the former Prussia creates a unique historical and cultural context on which the appearance of the house is based.