0.jpg

Zenith

 Project date: 2025

Type: Academic | Thesis

Tutor: Egor Orlov

Author: Dmitry Kulakov

Institute: Peoples' Friendship University of Russia

Course: 3

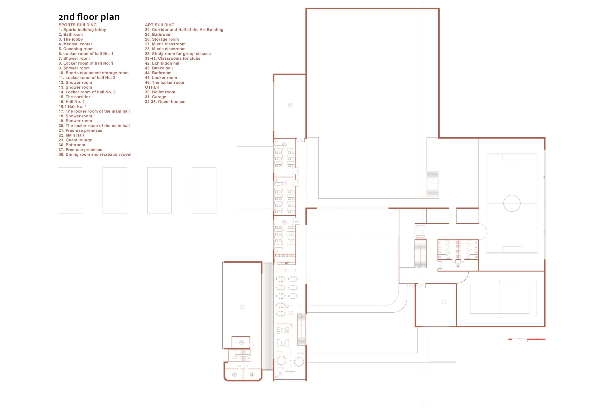
Theme: sport and recreation complex

The sports and recreation complex is a conceptual project that aims to inspire self-discovery and personal growth. Its architecture, like an endless universe, consists of interconnected spaces that can be used in various ways. Each space is filled with deep meaning.

The main idea behind the project is to create a space that is multifunctional and flexible. This means it can adapt to the needs of different people, allowing them to find harmony with themselves and the world around them.

The complex is designed in the style of a traditional Russian sports and wellness complex (FOK), which emphasizes the connection with national traditions of healthy living and gives the project a sense of familiarity and trust. However, behind the traditional façade lies innovative content.

The interior space is a complex system of interpenetrating volumes that seamlessly flow into each other. The large sports hall can be quickly reconfigured to host concerts or exhibitions thanks to mobile partitions and dedicated sound and lighting equipment.

Special attention has been paid to creating a comfortable and inviting atmosphere. Natural light is maximized, and the landscaping of the site is harmoniously integrated into the surrounding environment. The project envisions the creation of dedicated zones for rest and relaxation — quiet corners with soft lighting and comfortable furniture where visitors can unwind after workouts or simply enjoy tranquility.